Das Hohenhaus-Quartier
Janika Tolksdorf
Projektbeschreibung
Das neue Hohenhaus-Quartier in Wunstorf kündigt sich bereits von Weitem an: Ein hohes, bei-nahe turmartiges Gebäude ragt über die dichte Bepflanzung am Rande der Bundesstraße 441. In der ,Nonnenwiese‘ angekommen, öffnet sich das Areal gen Süden in Richtung des malerischen Auedamms. Das ehemalige Betonfertigteilwerk, umgeben von dreigeschossigen Holzbauten, wird sichtbar. Obwohl für die Produktion von Bautei-len nicht mehr geeignet, sind die Fertigungshallen noch lange nicht am Ende ihres Lebenszyklus angekommen – vielmehr beginnt nun ein neues Kapitel, welches die alten Hallen mit neuem Leben füllt.
Ein Zuhause für alle
Gesellschaftliche Transformationsprozesse haben auch die Anforderungen an Wohnraum neu definiert. Insbesondere die Grenzen zwischen Wohnen, Arbeiten und Erholung verschwimmen zunehmen. Zudem wächst das Bedürfnis nach intensiven Beziehungen – zur Natur, zu anderen Menschen und zu sich selbst. Jeder Lebensentwurf ist einzigartig und verdient einen ebenso vielfältiges Umfeld zur Entfaltung. Das Hohenhaus-Quartier bietet hierfür einen passenden baulichen Rahmen mit unterschiedlichen Wohnungstypen für die verschiedensten Ansprüche.
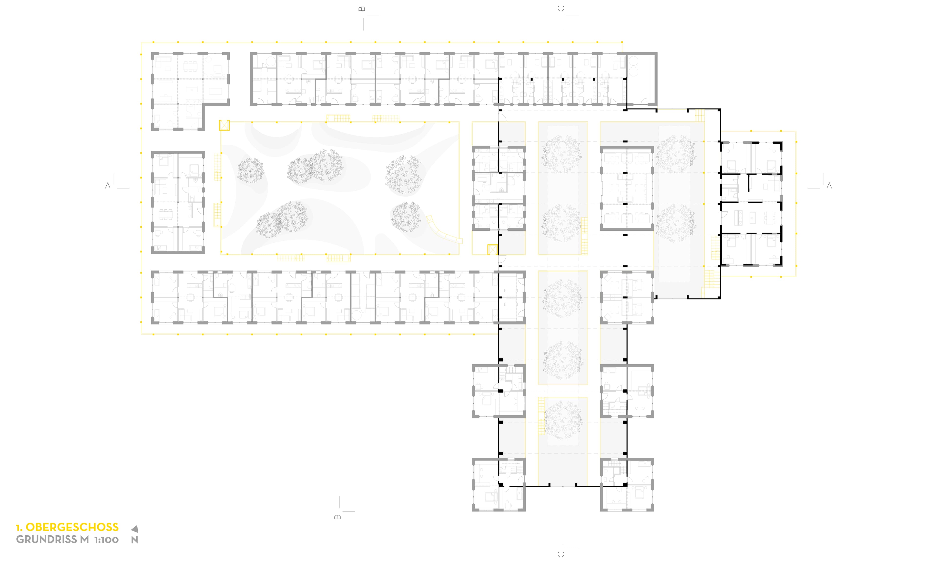
Ob im 14 m2 Mikro-Apartment, in einer der 1- bis 5-Zimmer-Wohnungen, im Townhaus oder im Selbstbau-Wohnturm – alle sind willkommen und finden in einer der insgesamt 53 Wohneinheiten einen passenden Platz. Soziale, ethnische und generative Hintergründe spielen dabei keine Rolle. Integration und Inklusion bilden die Grundpfeiler des gemeinschaftsorientierten Wohnkonzepts: 79 % der Wohnungen (42 Einheiten) sind stufen-los begehbar, und 34 % (18 Einheiten) verfügen über ein barrierefreies und rollstuhlgerechtes Badezimmer.
Gemeinschaft(lich) geben
Auch über die einzelnen Wohneinheiten hinaus bietet das Quartier ein vielfältiges Angebot an kollektiv genutzten Räumen und Freiflächen. Durch das vielfältige Angebot an Gemeinschaftsräumen, darunter unter anderem eine Gemeinschaftsküche und ein Co-Working-Space, kann der individuelle Platzbedarf innerhalb der privaten Wohnung reduziert werden. Der gemeinschaftsorientierte Fokus ist zudem bereits in der Erschließung baulich verankert: Um-laufende Laubengänge um den Innenhof und in den ehemaligen Fertigungshallen schaffen geschützte Außenräume zur Begegnung und Aneignung. Auch die verschiedenen Freiflächen um die Gebäude herum, im Innenhof und auf der Dachterrasse stehen der gesamten Quartiersgemeinschaft zur Verfügung. Die Freiräume bieten neben der Möglichkeit für gemeinschaftliche Aktivitäten auch Orte für Rückzug und Erholung in Ergänzung zu den kleinen privaten Balkonen, über die jede Wohnung verfügt.
Auch die Mobilität im Quartier basiert auf dem Prinzip des Teilens: Durch Carsharing sowie gemeinschaftlich genutzte Fahrräder und E-Scooter wird der Platzbedarf für individuelle Motorisie-rung auf dem ansonsten autofreien Grundstück drastisch reduziert.
Alt und neu
Das Gebäudekonzept schafft eine enge Verzahnung zwischen vorhandener und neuer Architektur. Die Erweiterungsbauten schmiegen sich als aufgelockerte Blockrandbebauung um den Be-stand, durchdringen diesen und ragen aus ihm heraus. Der Gebäudebestand bleibt dabei voll-ständig erhalten und bildet das Herzstück des gemeinschaftsorientierten Wohnkonzepts. Als thermische Pufferzone für die eingeschobenen Haus-in-Haus-Konstruktionen bilden die beiden Fertigungshallen mit ihrem imposanten Innenraum einen Aneignungsort, der zugleich als eine Art Marktplatz kollektiv genutzte Quartiersräume beherbergt. Großzügige Öffnungen in den Hallendächern sowie zwei Baumreihen in der Mitte der beiden Hallenteile dienen als Verlängerung des Innenhofs und holen die Natur ins Innere. Die alten Brückenkräne erzählen von der industriellen Geschichte des Standorts. Noch näher kommt man dieser Geschichte bei einer Erlebnisübernachtung in einem der alten Sandsilos, die nun als Gästezimmer dienen.
Die funktionale Verbindung von Alt und Neu erfolgt über die in die Hallen geführte Laubengangerschließung, welche die Industriearchitektur auf einer neuen Ebene erlebbar macht. Über die Fassadengestaltung der Erweiterungsbauten und des ehemaligen Bürogebäudes wird zudem eine optische Verknüpfung geschaffen. Die Holzfassaden, die zu Beginn noch einen starken Kontrast zur Betonarchitektur darstellen, werden mit der Zeit vergrauen und dadurch eine ähnliche Farbe wie der Beton annehmen. Was einst neu war, wird später aussehen, als gehöre es schon immer dazu – wie eine gebaute Metapher, die die Geschichte des Ortes fortlaufend weiterschreibt.
Nachhaltig gut
Die Erweiterungsbauten sind als modulare Holzskelettkonstruktionen mit Außenwänden in Holzständerbauweise konzipiert. Ein hoher Vorfertigungsgrad sowie eine weitreichende Standardisierung der Bauteile tragen zu einer Reduzierung der Baukosten bei. Lösbare Verbindungen und der Einsatz sortenreiner Materia-lien gewährleisten, dass alle neu eingebrachten Bauteile am Ende ihres Lebenszyklus vollständig rückgebaut und im Sinne einer zirkulären Bauwirtschaft weiterverwendet oder recycelt werden können.
Das Innere der Bauten ist flexibel an sich wandelnde Bedürfnisse anpassbar, sodass das Quartier auch in der Lebenszyklusbetrachtung langfristig nutzbar und wirtschaftlich bleibt. Da es keine tragenden Innenwände gibt, können einzelne Räume ohne umfangreichen baulichen Aufwand flexibel zwischen den Wohneinheiten um-geschaltet oder vollständig abgetrennt werden. Dies ermöglicht auch die Integration gänzlich neuer Funktionen in die nutzungsoffenen Raum-zuschnitte
Ein wesentlicher Grundsatz des Nachhaltigkeitskonzeptes ist zudem die Rückkehr zum einfachen Bauen. Dies umfasst sowohl die Ma-terial- und Konstruktionswahl als auch die Energieversorgung. Konstruktive und planerische Low-Tech-Strategien reduzieren den Bedarf an technischer Gebäudeausrüstung und der not-wendige Anteil an Gebäudetechnik basiert aus-schließlich auf der Nutzung erneuerbarer Energien.
Da die Ansätze des einfachen Bauens gegenwärtig nicht immer mit den geltenden Gesetzen und Normen vereinbar sind, könnte das Projekt als Modellprojekt für den derzeit zur Diskussion stehenden ,Gebäudetypus E‘ im Rahmen des nieder-sächsischen Programms ,Einfach gut!‘ umgesetzt werden und somit auch als Lernort und Vorbild für zukünftige Projekte dienen.










